1. SPESIFIKASI
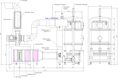
2. GAMBAR TEKNIS
3. DESKRIPSI
4. UNIT MESIN
- Kapasitas : 80 Kg
- Volume : 330 liter
- Dimensi :
- External : 4370 x 1340 x 3525(mm)
- Internal : Ø 1000 x 500 (mm) - Material :
- Contact produst SS 316L
- Non Contact Product SS 304
- Material Mild Steel Support lainnya
- Plat # 3 – 16 mm
- 2 bh Chamber Volume + Double Mess
- 2 bh Filter Bag Antistatik (Baru)
- 2 bh Trolley - Unit Rangkaian Steam Inlet dan
Outlet Ex. Japan :
Inlet Steam Ø 1” :
- Globe Valve
- Strainer
- PRV (Pressure reducing valve)
- Pressure gauge
- Solenoid valve
- Safety valve
- Globe valve bypas
Outlet Steam Ø 1” :
- Globe valve
- Steam trape
- Globe valve bypas - Unit Control Panel
- PLC
- Thermo Indicator input & output
- Thermo Control untuk produk
- Thermo Couple PT 100 (3 posisi)
- Main Switch
- Indicator Lamp
- Selector Switch
- Magnetic Contactor
- Emergency stop
- Safety (pengaman sensor ) untuk thermocouple posisi di chamber product dengan system rantai - Unit Blower :
- Impeller Centrifugal bahan Mild Steel
- Cerobong Mild Steel
- 1 unit Dumper Manual
- Konstruksi Body UNP bahan Mild Steel
- Butterfly valve
- Electromotor 15kW/20Hp, 50Hz, 380V, 2800 rpm
- 1 bh Medium Filter uk. 24 x 24 x 12”
- 1 bh Pre Filter uk. 24 x 24 x 2”
- Exchanger stainless steel - Accessories :
- 1 bh Air Regulator
- 1 bh Pneumatic Dumper
- 1 bh Pneumatic Shacking
- 1 bh Pneumatic Exhaust
- Sabuk Lifting
- Sight Glass
- Seal EPDM Tahan Panas - Dokumen : IQ, OQ dan Sertifikat material
2. GAMBAR TEKNIS
3. DESKRIPSI
Mesin Fluid Bad Dryer adalah sistem pengeringan yang lebih sesuai diperuntukan bagi bahan/ material yang bobotnya relatif ringan (bentuknya dapat berupa bubuk/tepung, kristal, granular dan sebagainya). dengan mekanisme pengeringan secara umum adalah sebagai berikut.
Bahan/ Material yang akan dikeringkan dimasukan secara konstan dan kontinyu kedalam ruang pengering kemudian didorong oleh udara panas yang terkontrol dengan volume dan tekanan tertentu, selanjutnya bagi bahan/material yang telah kering (karena bobotnya sudah lebih ringan) akan keluar dari ruang pengeringan menuju siklon untuk ditangkap dan dipisahkan dari udara, namun bagi material yang halus akan ditangkap oleh pulsejet filter bag.
Sebagian besar industri farmasi dengan produk obat-obatan yang harus memiliki kontaminan tinggi dengan udara adalah hal yang diwajibkan untuk menghindari kontaminasi udara luar. Nah dalam proses tahapan pengeringan sebuah produk industri farmasi menggunakan mesin FBD atau Fluid Bade Dryer
Sebagian besar industri farmasi dengan produk obat-obatan yang harus memiliki kontaminan tinggi dengan udara adalah hal yang diwajibkan untuk menghindari kontaminasi udara luar. Nah dalam proses tahapan pengeringan sebuah produk industri farmasi menggunakan mesin FBD atau Fluid Bade Dryer
4. UNIT MESIN
5. HARGA MESIN
Untuk harga mesin dan penawaran khusus sesuai spesifikasi bisa anda hubungi saja KONTAK KAMI atau download penawaran. (link akan aktif jika penawaran sudah di upload)


