1. SPESIFIKASI
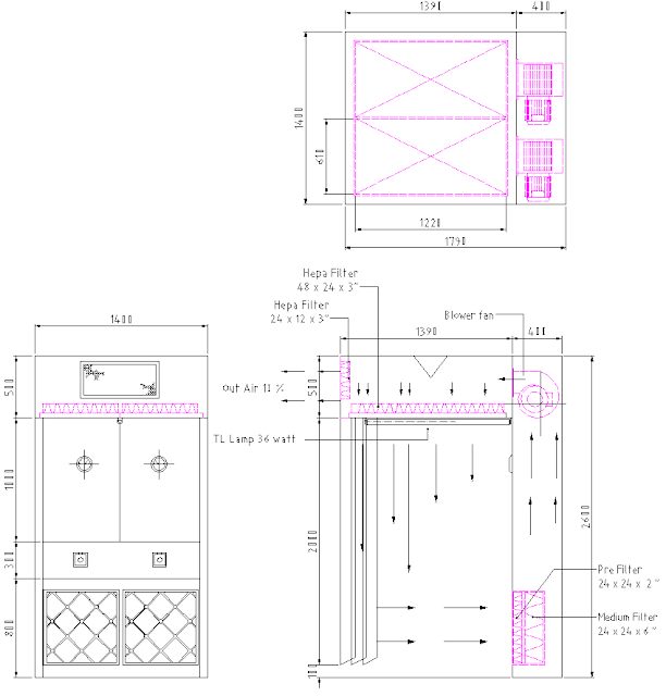
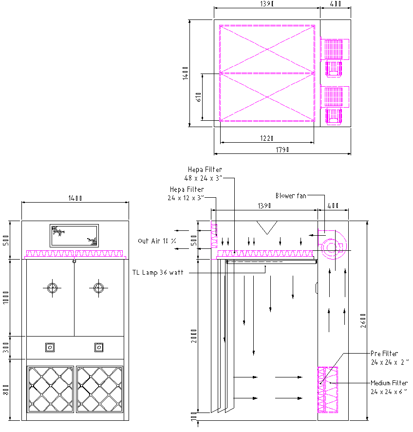
2. GAMBAR TEKNIS
4. UNIT MESIN
- Dimensi ( WxDxH) :
- External : 3940 x 1630 x 2700 (mm)
- Internal : 3940 x 1050 x 2100 (mm)
- Material Body Plat SS 304 # 1,2mm
- Kelengkapan :
- 2 bh Hepa Filter (H14)Dimensi 900x610x69 mm, Eff : 99,999 % (Air Flow) type Gel type Eff. 99,99 – D.O.P ( 0,3 µ)merk AAF
- 1 bh Hepa Filter (H14)Dimensi 610x305x69 mm, Eff : 99,999 % (Out Air) type Gel type Eff. 99,99 – D.O.P ( 0,3 µ) merk AAF
- 2 bh Pre Filter (G4) Dimensi 610x610x50 mm, Eff : 95 % merk AAF
- 2 bh Medium Filter (F8)Dimensi 610x610x150 mm merk AAF
- 2 bh Blower type Centrifugal forward, 500 watt, 220 Volt, 50 Hz, (Design noise maximum 80 Db), merk EBM
- 2 bh Magnehelik Dwyer 0-500 Pascal (test report kalibrasi)
- 1 bh Lampu LED Elektro Ballast, 18 Watt
- 1 bh Meja Timbang Uk. 1100 x 600 x 800 (mm)
- 1 lots Plastik Curtain (Design Curtain Over Leving Min 3cm)
- 1 lots P.A.O Connection to integrity test - Panel control :
- 1 Set HMI control based on PLC/ Touch screen 7”
- Sensor Air Velocity
- Speed control using Dimmer
- Program to control speed motor if velocity air < 0,45 m/s
- Kabel power dan kabel control
- Finishing :
- External & Internal : Hairline - Termasuk Dokumen :
- FAT & SAT
- DQ, IQ, OQ & PQ
- Manual Book (hard copy & CD)
- Test commissioning report (Integrity test , velocity test, particle counter test & flow pettrent)
- Certificate Material, Certificate Filter, Certificate Calibration)
- Spare Part List
3. DESKRIPSI
Weighing Booth adalah sebuah mesin yang dirancang khusus untuk
proses kerja sterilisasi dengan flow yang telah distandarkan. Bisa digunakan
dalam proses penimbangan ataupun proses lainnya yang membutuhkan lingkungan
yang sedikit mungkin adanya kontaminan. Selain itu juga dapat mencegah
terjadinya pencemaran yang diakibatkan oleh udara. Secara garis besar cara
kerja mesin ini adalah udara disirkulasikan dalam ruangan menggunakan bantuan
blower yang terletak didalam Weighing Booth, udara yang masuk sebelumnya
difilter terlebih dahulu oleh pre filter dan terakhir oleh Hepa filter,
kemudian udara akan ditembakan secara vertikal keluar dengan kecepatan air flow
tertentu. Weighing Booth ini juga dilengkapi dengan variable speed sehingga
kecepatan motor blower dapat diatur sesuai kebutuhan.
LAF, weighing booth, sampling booth bahkan
Biosafety Cabinet merupakan unit dengan sistem yang mirip sehingga kualifikasi
kinerjanya hampir sama. Khusus untuk Biosafety Cabinet dan LAF area steril
mempunyai persyaratan mikroba. Weighing booth/sampling booth yang ditempatkan
di area steril mempunyai persyaratan yang ketat untuk mikroba dan partikel.
Untuk kualifikasi kinerja LAF/Weighing
Booth/Sampling Booth Walaupun ketiganya sedikit berbeda, akan tetapi parameter
kualifikasi kinerjanya secara umum sama. Untuk kualifikasi Instalasi, operasi
tidak dibahas (mungkin akan ditulis dalam artikel berikutnya) karena relatif
mudah dan biasanya Kualifikasi Kinerja merupakan kegiatan yang cukup rumit.
Auditor biasanya cukup concern ke Kualifikasi Kinerja karena menyangkut kinerja
alat yang ujungnya pengaruh ke mutu. Perlu diperhatikan untuk pengukuran
parameter-parameter menggunakan alat yang telah terkalibrasi dan dilakukan oleh
orang yang terlatih (ada bukti dokumen kalibrasi dan pelatihan)
5. HARGA MESIN
Untuk harga mesin dan penawaran khusus sesuai spesifikasi bisa anda hubungi saja KONTAK KAMI atau download penawaran. (link akan aktif jika penawaran sudah di upload)

