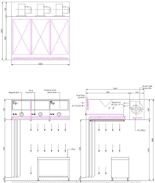
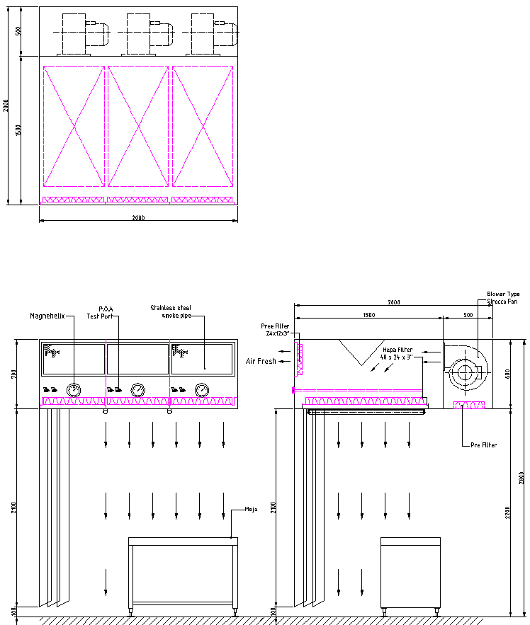
1. SPESIFIKASI
- Dimensi
( WxDxH) :
- External : 2000 x 2000 x 2800 (mm)
- Internal : 2000 x 1500 x 2200 (mm) - Material Body Plat SS 316 # 1,2mm
- Kelengkapan
:
- 3 bh Hepa Filter (H14) Dimensi 1220x610x69 (mm), Eff : 99,99% – D.O.P (0,3µ)
- 3 bh Hepa Filter (H14) Dimensi 610 x 305 x 69 mm, Eff : 99,99% - D.O.P (0,3µ)
- 3 bh Pre filter (G4) Dimensi 610 x 305 x 69 mm
- 3 bh Blower Type Sirocco Fan, 1 Hp 220/380V 50 Hz, (Design noise maximum 80 Db)
- 3 bh Magnehelik Dwyer 0-500 Pascal (test report kalibrasi)
- 2 bh Lampu LED 36 Watt 220V/50Hz (Max. 500 Lux)
- 1 bh meja bahan perporated SS 316 Ø 5 mm
- 1 lots P.A.O Connection to integrity test
- 1 lots Plastik Curtain (Design Curtain Over Leving Min 3cm) - Panel
control System Otomatis :
- 1 Set HMI control based on PLC/Touch screen : 7”
- 1 bh Sensor Air Velocity
- Speed control using Dimmer
- Emergency stop
- Alarm & Warning : Low velocity / Over velocity
- Program to control speed motor if velocity air < 0,45 m/s- Kabel power dan kabel control - Finishing
:
- External & Internal : Hairline - Termasuk
Dokumen :
- DQ, IQ, OQ & PQ
- Manual Book
- Tes commissioning
- Certificate Material
- Certificate Filter
- Certificate Calibrasi
2. GAMBAR TEKNIS
3. DESKRIPSI
LAF Workbench adalah sebuah mesin yang dirancang khusus untuk proses kerja sterilisasi dengan flow yang telah distandarkan. Bisa digunakan dalam proses pengambilan sample ataupun proses lainnya yang membutuhkan lingkungan yang sedikit mungkin adanya kontaminan. Selain itu juga dapat mencegah terjadinya pencemaran yang diakibatkan oleh udara kotor. Secara garis besar cara kerja mesin ini adalah udara disirkulasikan dalam ruangan menggunakan bantuan blower yang terletak didalam LAF ini, udara yang masuk sebelumnya difilter terlebih dahulu oleh pre filter dan terakhir oleh Hepa filter, kemudian udara akan ditembakan secara vertikal keluar dengan kecepatan air flow tertentu. LAF ini juga dilengkapi dengan variable speed sehingga kecepatan motor blower dapat diatur sesuai kebutuhan.
![]() |
| ( Sumber : www.ziel-usa.com) |

